Exchange the CEC enclosure SAS RAID internal adapter
Before you begin
CAUTION:
This assembly contains mechanical moving parts. Use care when
you service this assembly. (C025)
Use approved ESD procedures to prevent damage.
Attention:
- This procedure is not a stand-alone procedure. Customer disruption and damage to the hardware might occur when microcode and power boundaries are not in the proper conditions for this service action.
- If a serviceable event FRU repair directed you to this procedure, the microcode and power boundaries are already set.
- If a serviceable event FRU repair did not direct you to this procedure, see MAP1230 Replace a FRU without using a serviceable event.
Notes:
- All the cables and FRUs to be removed must be uniquely identified so they can be reinstalled correctly.
- If an installed earthquake resistance kit prevents you from accessing this FRU, refer to MAP1600.
- This procedure is also used to replace a front SAS cable. If you are replacing a front SAS cable, you will install the new cable on the adapter before replacing the adapter in the system.
Preparing the CEC enclosure to remove and replace the SAS RAID internal adapter
Procedure
- Use a replacement part with a valid DS8000® part number to ensure it has the proper firmware, VPD, and/or configuration to ensure it is compatible with the DS8000 service procedures. Attempting to use a generic server FRU might fail and require next level of support to recover.
-
All parts being removed must be marked or identified so they can be installed into their
original locations.
Note: Failure to do this can extend the service duration and may require next level of support assistance.
- The management console keyboard can be moved between the operating and stowed position as needed to allow service clearance above the CEC enclosure.
-
Use the front and rear blue identify LEDs to determine the CEC enclosure to be repaired. Both
blue LEDs should be lit.
- CEC control panel blue identify LED
as shown in Figure 1. - CEC enclosure rear blue identify LED
as shown in Figure 2.
Note: If both the front and rear CEC enclosure identify LEDs are not lit, use the location code listed in the serviceable event FRU list. See MAP1245 Finding FRUs by using location codes.Figure 1. Control panel LEDs 
Figure 2. CEC enclosure rear LEDs 
- CEC control panel blue identify LED
-
Verify that the CEC enclosure is in the power-off state. See Figure 3.
- At the rear of the CEC enclosure, view all CEC enclosure power supply DC LEDs.
-
Are all DC (output) LEDs flashing?
- Yes, continue with the next step.
- No, do not continue with this FRU replacement. Go to MAP4841 CEC enclosure fails to power off during service processor repair (Models 961, 98x).
Figure 3. Location of the power supplies and LEDs (Models 981, 985, 986) 
-
Attach the electrostatic discharge (ESD) wrist strap.
Attention:
- Attach an electrostatic discharge (ESD) wrist strap to an unpainted metal surface of your hardware to prevent the electrostatic discharge from damaging your hardware.
- When using an ESD wrist strap, follow all electrical safety procedures. An ESD wrist strap is used for static control. It does not increase or decrease your risk of receiving electric shock when using or working on electrical equipment.
- If you do not have an ESD wrist strap, just prior to removing the product from ESD packaging and installing or replacing hardware, touch an unpainted metal surface of the system for a minimum of 5 seconds.
-
Disconnect the power cords
from the CEC with the DC
(output) LEDs flashing. See Figure 4.
Notes:- Ensure that the power cords are correctly labeled.
- The power supply LEDs might continue to flash for up to 20 seconds while internal power is discharged.
- The power cord is fastened to the system by using the hook-and-loop fastener
. Unstrap the fastener to allow
the enclosure to be placed in the service position.
Figure 4. Removing the power cords (Models 981, 985, 986) 
-
Observe the CEC enclosure control panel green power button LED
. See Figure 5.
- If it is off, go to the next step.
- If it is flashing, the CEC enclosure is still in the power-off state. DO NOT CONTINUE. Ensure that you have unplugged the power cables.
Figure 5. Control panel LEDs 
-
Disconnect all remaining cables from the rear of the CEC enclosure. See Table 1 and Figure 7.
Table 1. CEC enclosure cable connections Connection Description P1-T3 (HMC 1) FSP Ethernet P1-T4 (HMC 2) FSP Ethernet P1-C3-T1, P1-C3-T2 PCIe to I/O enclosures (if C3 present) P1-C5-T1, P1-C5-T2 PCIe to I/O enclosures (if C5 present) P1-C6-T1, P1-C6-T2 PCIe to I/O enclosures P1-C7-T1, P1-C7-T2 PCIe to I/O enclosures P1-C8-T1, P1-C8-T2 i2c to RPCs P1-C10-T1, P1-C10-T2 LPAR Ethernet P1-C10-T3, P1-C10-T4 Customer network (optional feature, if used) P1-C11-T1, P1-C11-T2
P1-C11-T3, P1-C11-T4Customer network (optional feature, if used) P1-C12-T1, P1-C12-T2 RS485 to RPCs Figure 6. CEC enclosure location codes (rear view) 
-
Remove the front cover.
- Ensure that you have the electrostatic discharge (ESD) wrist strap attached. If not, attach it now.
-
Remove the two shipping screws
(if present) that secure the
system to the rack.
-
Pull the cover away from the system. The cover has an indentation where you can hold onto it
more easily.
Figure 7. Removing the front cover 
-
Place the CEC enclosure into the service position.
-
Remove the front screws
(if present) that secure the
enclosure to the rack.
Figure 8. Removing the front screws 
-
Release the side latches
and pull the latches to slide
out the enclosure assembly.
Figure 9. Releasing the side latches 
-
Remove the front screws
-
Remove the service access cover.
- Ensure that you have the electrostatic discharge (ESD) wrist strap attached. If not, attach it now.
-
Release the latch by pushing the release latch
in the direction shown.
-
Slide the cover
off
the system unit. When the front of the service access cover has cleared the upper frame ledge, lift
the cover up and off the system unit.
Attention: For proper cooling and airflow, replace the cover before turning on the system.Figure 10. Removing the service access cover 
-
Attach the electrostatic discharge (ESD) wrist strap. Your system has an ESD pin on the
backplane as shown in Figure 6. Attach the ESD wrist
strap to the ESD pin
Attention:
- Attach an electrostatic discharge (ESD) wrist strap to an unpainted metal surface of your hardware to prevent the electrostatic discharge from damaging your hardware.
- When using an ESD wrist strap, follow all electrical safety procedures. An ESD wrist strap is used for static control. It does not increase or decrease your risk of receiving electric shock when using or working on electrical equipment.
- If you do not have an ESD wrist strap, just prior to removing the product from ESD packaging and installing or replacing hardware, touch an unpainted metal surface of the system for a minimum of 5 seconds.
Figure 11. Location of the ESD pin 
Removing the CEC enclosure SAS RAID internal adapter
Procedure
To remove the CEC enclosure SAS RAID internal adapter, complete the following steps.
- Ensure that you have the electrostatic discharge (ESD) wrist strap attached. If not, attach it now.
-
Remove the fan cage.
-
Release the blue touch point latches
by pulling them up, as shown in
Figure 12
-
Pull up the fan cage out of the system by holding on to the blue touch point latches
.
Figure 12. Removing the fan cage 
-
Release the blue touch point latches
-
Remove the SAS cable cover from the side of the chassis. Grasp the handle
and pull away from the side of
the system, then slide the cover toward the rear to remove it as shown. See Figure 13.
Figure 13. Removing the SAS cables cover 
-
Label the front SAS cables that are attached to the SAS RAID internal adapter that you want to
remove. Press the latch
and unplug the connector of the cable from the disk drive backplane, as shown in Figure 14. Leave the other end of the cable plugged in
to the P1 or P2 connector on the SAS RAID internal adapter until directed to unplug it.
Figure 14. Unplugging the SAS cables from the disk drive backplane 
-
Lift the blue handles
of the SAS RAID internal adapter in the direction shown. See Figure 15.
-
Lift the SAS RAID internal adapter out of the slot with the front SAS cables still connected to
the adapter. Ensure that the front SAS cables do not get caught on any components while you are
lifting the SAS RAID internal adapter out of the slot.
Figure 15. Removing the SAS RAID internal adapter 
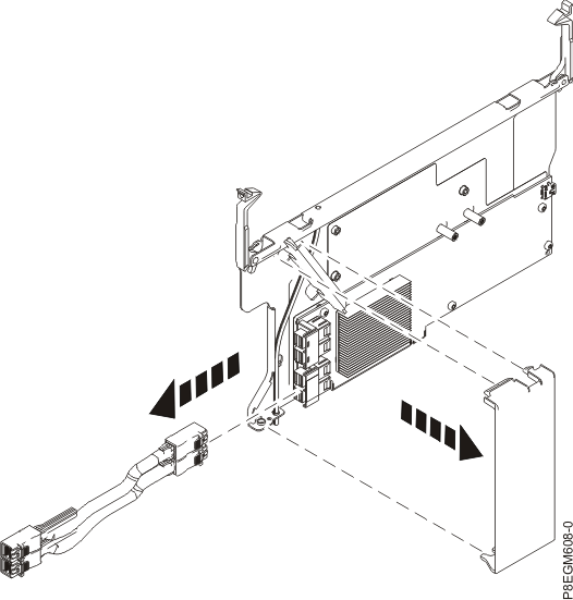
-
Disconnect the front SAS cables from the SAS RAID internal adapter connectors P1 or P2. Press
the latch and unplug the connector of the cable from the SAS RAID internal adapter and set it aside
for reuse.
Figure 16. Disconnect front SAS cables (cover shown in figure is not used on C14 adapter) 
- Place the SAS RAID internal adapter on an appropriate ESD surface.
Replacing the CEC enclosure SAS RAID internal adapter
Procedure
To remove the CEC enclosure SAS RAID internal adapter, and the PCIe3 x8 SAS RAID internal adapter 6 Gb, complete the following steps.
- Ensure that you have the electrostatic discharge (ESD) wrist strap attached. If not, attach it now.
-
Reconnect the front SAS cables to the SAS RAID internal adapter front connector before you
install the adapter. Push the cable connector in until the connector latch clicks.
Note: If you are replacing a front SAS cable, you will install the new cable on the adapter at this time.
Figure 17. Reconnect front SAS cables (cover shown in figure is not used on C14 adapter) 
- Route the front SAS cables into position while you are lowering the SAS RAID internal adapter into the slot.
-
Complete the installation of the SAS RAID internal adapter by fully seating it. Ensure that the
adapter is installed on the locating pin. Push the blue handles
in the direction that is shown.
See Figure 18.
Figure 18. Installing the SAS RAID internal adapter 
-
Reconnect the front SAS cables to the connector ports on the disk drive backplane as shown in
Figure 19. Push the cable connector in
until the connector latch clicks.
Figure 19. Reconnecting the front SAS cable
Note: With one PCIe3 x8 SAS RAID internal adapter (CCIN 57D7) in slot P1-C14 (base storage feature), a SAS cable connects the lower disk drive backplane connector (J1) to the P1 connector on the adapter. A SAS cable connects the upper disk drive backplane connector (J2) to the P2 connector on the same adapter. See Figure 20.Figure 20. Reconnecting the SAS cable in a base-storage configuration 
-
Replace the SAS cable cover. Place the cover slots onto the pins on the side of the chassis.
The triangle symbol on the SAS cable cover lines up with the triangle symbol on the side of the
chassis when the cover slots and pins are aligned correctly. Push the cover forward toward the front
of the system until the handle
latches in place. See Figure 21.
Figure 21. Replacing the SAS cable cover 
- Replace the fan cage with the fans installed.
Preparing the CEC enclosure for operation after removing and replacing the fans and fan cage
Procedure
To prepare the system for operation, complete the following steps.
- Ensure that you have the electrostatic discharge (ESD) wrist strap attached. If not, attach it now.
-
Replace the service access cover.
-
Slide the cover
on
to the system unit.
-
Close the latch release
by pushing it in the direction
shown.
Figure 23. Installing the service access cover 
-
Slide the cover
- Ensure that you have the electrostatic discharge (ESD) wrist strap attached. If not, attach it now.
-
Place the CEC enclosure into the operating position.
- Ensure that you have the electrostatic discharge (ESD) wrist strap attached. If not, attach it now.
-
Unlock the blue rail safety latches
by lifting them upward.
-
Push the system unit
back into the rack until both system unit release latches lock into position.
-
Secure the enclosure to the rack with screws, if screws were removed when preparing the
enclosure for service.
Figure 24. Placing the CEC enclosure into the operating position 
-
Replace the front cover.
- Push the cover onto the system.
-
Gently push the cover in until the cover clips
are seated in their respective
mounting posts as shown in the following figure. The cover snaps into place and has an indentation
where you can hold onto it more easily.
-
Replace the shipping screws
.
Figure 25. Installing the front cover 
- Attach the electrostatic discharge (ESD) wrist strap.
-
Reconnect all cables, except for power cords. See Table 2 and Figure 26.
If optical Ethernet connections are used, use proper cleaning procedures.Important: The optical cable plugs (LC connectors) and ports (SFPs) must be cleaned before connecting them. Use cleaning tool 54Y4392 or IBM-approved alternative. After cleaning SFPs with the tool, use air bulb 45D2645 or IBM-approved alternative. For detailed procedures, refer to current DS8000 Info Alerts or contact your next level of support.
Table 2. CEC enclosure cable connections Connection Description P1-T3 (HMC 1) FSP Ethernet P1-T4 (HMC 2) FSP Ethernet P1-C3-T1, P1-C3-T2 PCIe to I/O enclosures (if C3 present) P1-C5-T1, P1-C5-T2 PCIe to I/O enclosures (if C5 present) P1-C6-T1, P1-C6-T2 PCIe to I/O enclosures P1-C7-T1, P1-C7-T2 PCIe to I/O enclosures P1-C8-T1, P1-C8-T2 i2c to RPCs P1-C10-T1, P1-C10-T2 LPAR Ethernet P1-C10-T3, P1-C10-T4 Customer network (optional feature, if used) P1-C11-T1, P1-C11-T2
P1-C11-T3, P1-C11-T4Customer network (optional feature, if used) P1-C12-T1, P1-C12-T2 RS485 to RPCs Figure 26. CEC enclosure location codes (rear view) (Models 981, 985, and 986) 
-
Reconnect the power cords
to the CEC enclosure. See Figure 27.
-
Fasten the power cords to the enclosure by using the hook-and-loop fasteners
.
Figure 27. Connecting the power cords 
-
Verify that the CEC enclosure has power available. See Figure 28
- At the rear of the CEC enclosure, view the CEC enclosure power supply DC LEDs.
-
Are all DC (output) LEDs flashing?
- Yes, continue with the next step.
- No, ensure that the power cords are properly connected. If no connection problem is found, contact your next level of support.
Figure 28. Location of the power supplies and LEDs (Models 981, 985, 986) 
-
Wait up to 5 minutes for the CEC enclosure control panel power button LED
to flash. See Figure 29.
Note: This ensures that the CEC enclosure is in the power-off state.Is the power button LED flashing?- Yes, go to the next step.
- No, ensure the CEC enclosure power supplies are fully seated. The possible failing FRUs are the CEC enclosure system backplane, I2C interface card and cables, and control panel. You can also call the next level of support.
Figure 29. Control panel LEDs 
- Close the rear door of the rack.
- Exit this service information center parts exchange procedure and return to the procedure that sent you here.
