Exchange the bus bar, 5/12V secondary upper
Before you begin
Use approved ESD procedures to prevent damage.
About this task
Attention:
- This procedure is not a stand-alone procedure. Customer disruption and damage to the hardware might occur when microcode and power boundaries are not in the proper conditions for this service action.
- If a serviceable event FRU repair directed you to this procedure, the microcode and power boundaries are already set.
- If a serviceable event FRU repair did not direct you to this procedure, see MAP1230 Replace a FRU without using a serviceable event.
Notes:
Decide whether you are going to remove the upper or the lower bus bars and select the
condition that applies:- This procedure is disruptive and requires the storage facility to be powered off.
- All the cables and FRUs to be removed must be uniquely identified so they can be reinstalled correctly.
- If an installed earthquake resistance kit prevents you from accessing this FRU, refer to MAP1600.
- You are here to replace a bus bar in the lower half of a base rack, go to step 1.
- You are here to replace a bus bar in the upper half of an expansion rack, go to step 1.
- You are here to replace a bus bar in the lower half of an expansion rack, go to Exchange the bus bar, 5/12V secondary lower.
Remove the bus bar, 5/12V secondary upper
Procedure
- To locate this FRU, take one of the following actions and then return here and
continue to replace the FRU:
- If this FRU has a FRU identify indicator, use the FRU identify indicator,
which is listed in MAP1240 Locating FRUs by using identify indicators.
If not, use the location
code.Note: There might be cases where the FRU failure or fencing conditions prevent the FRU LED indicator from being lit even if the FRU has power.
- Use the location code, which is listed in MAP1245 Finding FRUs by using location codes.
- If there is no FRU identify indicator or location code, you were sent here by an isolation MAP or symbolic FRU procedure. Use the information in that procedure and the figures in this procedure to locate the proper part to exchange.
- If this FRU has a FRU identify indicator, use the FRU identify indicator,
which is listed in MAP1240 Locating FRUs by using identify indicators.
If not, use the location
code.
- Most, but not all, FRUs have identify indicators. Use the flashing amber or solid blue FRU identify indicators to ensure that you are working
on the correct enclosure or FRU.
- The
light path
identify LEDs are a hierarchy of LEDs that can identify the rack, enclosure, FRU, and even the FRU connector to which a cable is connected. - For more information, refer to MAP1240 Locating FRUs by using identify indicators.
- The
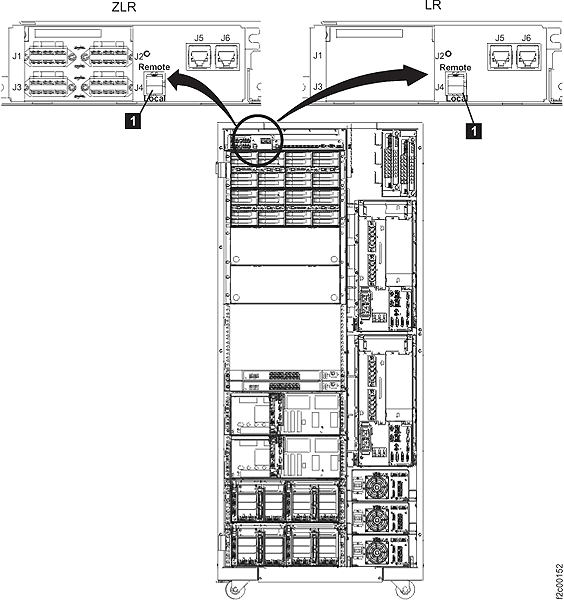
- Use the management console to power off the storage facility subsystem.
- Set the local/remote switch card white switch
to Local (down). This will prevent
the rack from being unexpectedly powered up by the management console (or remote
power control if the feature is installed). See Figure 1. Figure 1. Location of the local remote switch card and the zSeries local remote switch card 
- Does the rack you are repairing contain an integrated management console? See Figure 2.
Figure 2. Visual overview of Model 941 Rack-1, front 
- Yes, go to the next step.
- No, go to the 208VDC bus bar gate to service position instructions in step 10.
- Is this management console being
used to guide this repair?
- Yes, you will need to use the service information center to guide this FRU replacement. Bring up the Information Center CD in a PC platform. In the navigation area, select the Exchanging Parts Rack power and cooling section and select this FRU procedure. Then, go to the next step.
- No, go to the next step.
- Shut down the management console.
- From the navigation area, click HMC Management.
- In the right work area, go to the Operations section
and click Shut Down or Restart. The Shutdown or Restart window opens.
- Select Shutdown HMC, then click OK.
- Wait for the HMC to power off then go to the next step.
- Power off the management console display.
- If this is an expansion rack and it has old level sheet metal, the sheet metal
baffle
to the left of the gate and at the bottom of the storage enclosure chassis might need to be
removed to allow the gate to swing open. Remove the two screws
that fasten the baffle to the 19" rack mount vertical rails. If the baffle is the new level
sheet metal, it has a flexible plastic cutout that bends out of the way when the gate is swung
open.
Figure 3. Air baffle 
-
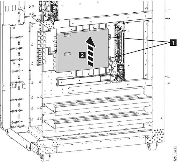
Remove the two screws
and open the 208 VDC bus bar gate to the service position
.
Figure 4. 208VDC bus bar gate service position 
- Have the customer remove power from the storage facility:
- Instruct the customer to switch off the circuit breakers
that supply mainline AC voltage to both power receptacles for the
main line power cables to the rack that will have the bus bar FRU
replaced. Attention: Use lockout and tagout procedures as defined in the Electrical Safety for IBM® Customer Engineers.
- Observe the front of both PPSs. Is
the AC INPUT GOOD LED indicator off?
- Yes, the customer has removed power from the correct PPSs. Continue at the next step.
- No, stop. The customer has not removed power from the correct PPSs.
- Determine which PPS the customer has removed power from.
- Have the customer restore power to the PPS. The PPS may not power back on fully.
- Observe the LED indicators on the front of both PPSs with a PPS that is fully powered on. If the PPS did not power-on fully, you need to do a pseudo repair of the PPS to power it on. A pseudo repair of the PPS means that you use the normal FRU replacement procedures, but you do not replace or even disconnect the PPS cables. Refer to MAP1230 Replace a FRU without using a serviceable event.
- After the PPSs are powered on, return to this step and have the customer switch off the circuit breakers to the proper PPSs.
- Instruct the customer to switch off the circuit breakers
that supply mainline AC voltage to both power receptacles for the
main line power cables to the rack that will have the bus bar FRU
replaced.
- Remove power and mainline power cord from the PPSs.
- At both PPS, set
the PPS ac
input power module CB00 switch
to Off (down). See Figure 5. - At both PPSs, disconnect
the mainline power cord from the PPS ac input
power module. Push the two release levers
. See Figure 5. Figure 5. Power supply main line CB00 switch 
- Remove the cable ties
securing the mainline power cable
to PPS-2
(lower PPS).
See Figure 6.
- Remove the screw and mainline power cable bracket
. See Figure 6. Figure 6. Power supply main line 
- At both PPS, set
the PPS ac
input power module CB00 switch
- At both PPSs, disconnect
the rear cables:
- At the rear of both PPSs, disconnect all the cables.
- Remove the cable ties at both PPSs.
- Remove the green/yellow ground wire from both PPSs. Keep the serrated washers.
-
At the front of the rack, remove the screws
and swing
open the rack operator panel
. See
Figure 7.
- At the front of the rack, remove the two screws
and remove the door latch bracket
. See Figure 7. Figure 7. Rack and power operator panel UEPO open 
- Put PPS-1
(upper) in service position 2:
- At the front of the rack, remove the eight black hex
head screws
that fasten the PPS-1 chassis
to the rack. See Figure 8.
Figure 8. PPS chassis remove 
- Slide PPS-1 out
to service position 2. The PPS rail
detents will click at service position 1 and then will prevent the PPS from
being pushed back in to the normal position. See Figure 9.
Figure 9. PPS service position
Note: To allow the PPS to be pushed back in, you must pull the PPS out to service position 2 (fully extended), release both slide detents
and then push the PPS chassis
in fully. See Figure 10.
- At the front of the rack, remove the eight black hex
head screws
- At the front of the rack, remove the two screws
securing the PPS to the
sheet metal tray. See Figure 10.
Figure 10. PPS sheet metal screws 
- Pull the PPS out
about 5 cm (2 inches) further on the
sheet metal tray as shown. (This will give more clearance at the back
of the PPS for
the next step.) See Figure 11.
Figure 11. Sliding PPS out on sheet metal tray 
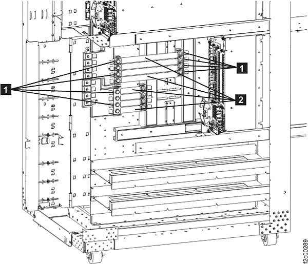
- Remove the primary to secondary tie bars:
- At the rear of the rack, remove the lower primary to
secondary tie bar plastic cover. Loosen, but do not remove the two
screws
. See Figure 12. - The plastic cover has keyhole slots. The cover has tabs
that slide behind the lower and low tie bar. Slide the cover up
, and then remove it. See Figure 12. Figure 12. Bus bar cover 
- Remove the bolt
securing each end of each lower tie
bar and remove the tie bars
. See Figure 13. Figure 13. Lower tie bars 
- At the rear of the rack, remove the lower primary to
secondary tie bar plastic cover. Loosen, but do not remove the two
screws
- Remove two storage enclosures (if installed).
- At the rear of the rack, remove the middle two storage
enclosures
(if installed) in the lower half of
the rack. See Figure 14.
Figure 14. Middle storage enclosures 
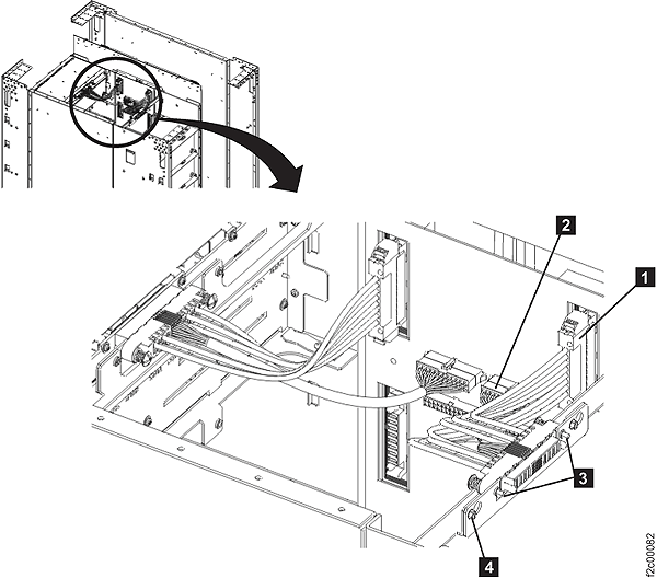
- Each storage enclosure, disk drive module (DDM)
, fiber channel interface card
and FC-AL cable
must be in the exact same position
when reinstalled in later steps. See Figure 15. - Observe the cable labeling to ensure you will be able
to replug the cables correctly. Disconnect the FC-AL cables
from the two fiber channel interface
cards (FCIC)
. Squeeze the top of the FC-AL cable
connector to release it from the FCIC card. See Figure 15. Note: There will be four FC-AL cables if this is the last storage enclosure in this group. There will be eight FC-AL cables if this is not the last storage enclosure in this group. - Remove the four screws
fastening the storage enclosure to
the rack mount rails. See Figure 15. Figure 15. DDM Fibre Channel cable 
- Remove each DDM and FCIC card from the storage enclosure and set in a safe place. You must ensure each one will be plugged in the same position in the new storage enclosure. Write down the serial number and position of each part before removing them.
- At the rear of the rack, remove the middle two storage
enclosures
- Remove the 5/12V secondary bus bar (see Figure 16):
- Disconnect the four storage enclosure power cables from
the secondary bus bar. Squeeze the top and bottom release levers on
the cable connector and then pull to release. The front storage enclosure
cables
connect to the front 5/12V secondary
bus bar A. The rear storage enclosure cables
connect to the front 5/12V secondary
bus bar B. - Remove the nuts and washers fastening the bus bar to
the rack and then remove the bus bar.
Figure 16. Storage enclosure cables to bus bar 
- Disconnect the four storage enclosure power cables from
the secondary bus bar. Squeeze the top and bottom release levers on
the cable connector and then pull to release. The front storage enclosure
cables
Install the bus bar, 5/12V secondary upper
Procedure
- Install the bus bar and connect the cables.
- Install the 5/12V secondary bus bar on the mounting studs. Install the washers and nuts.
- Install the primary to secondary tie bars. Note: The bolts must be torqued to 8 to 11 newton meters (6 - 8 foot pounds) to make proper contact. It is recommended that you use a torque wrench if one is available. DO NOT OVERTIGHTEN, or the threads in the copper bus bars might strip.
- Install the tie bar plastic cover.
- There are tabs on the inside of the cover that must slide down behind the tie bars.
- The keyhole slots in the cover must slide over the two screws near the PPS.
- Tighten the two screws.
- Connect the four storage enclosure power cables to the bus bar.
- Install any storage enclosures that were removed:
- Install the storage enclosure in the original position in the rack and fasten it with the four screws.
- Install each disk drive module (DDM) and fibre-channel interface card in the exact same position as it was in the old storage enclosure.
- Install each FC-AL cable in the exact same position as it was in the old storage enclosure.
-
Place PPS-1 in the normal position:
- At the front of the rack, push PPS-1 fully in on the sheet metal tray and install the two screws.
- Install the eight black hex head screws that fasten each PPS chassis to the rack.
- At the front of the rack:
- Close the rack operator panel and install the two screws.
- Install the door latch bracket with two screws.
- At PPS-1
connect the rear cables:
- At the rear of both PPS-1, connect all the cables.
- Install the cable ties.
- Install the green/yellow ground wire. Ensure that the serrated washer is between the wire and the PPS or frame.
- Connect power:
- Connect the mainline power cable to the PPS and ensure that both latches are secure.
- Set the PPS ac input power module CB00 switch to On (up).
- Instruct the customer to switch on the mainline circuit breaker that supplies mainline ac voltage to the power receptacle for PPS-1.
- At the front of the rack, observe the PPS AC INPUT
GOOD LED. Is the LED off on both PPS?
- Yes, go to the next step.
- No, return to step 4.
-
208 VDC bus bar gate to normal position:
-
Pivot the 208 VDC bus bar gate closed being careful that both mainline power cables lay in the
space between the two 208 VDC bus bars. Fasten the gate shut with the two screws.
Note: If this is an expansion rack and the sheet metal baffle to the left of the gate was removed, reinstall it now with the two screws.
-
Pivot the 208 VDC bus bar gate closed being careful that both mainline power cables lay in the
space between the two 208 VDC bus bars. Fasten the gate shut with the two screws.
- Power on the rack:
- Set the local/remote switch card white switch to Remote (up).
- Use the management console to power on the storage facility subsystem.
- Exit this service information center parts exchange procedure and return to the procedure that sent you here.